Easy Installation
- Quick and easy installation and setup
- No room construction, sub-floors or other major modifications required
- Automatic system calibration
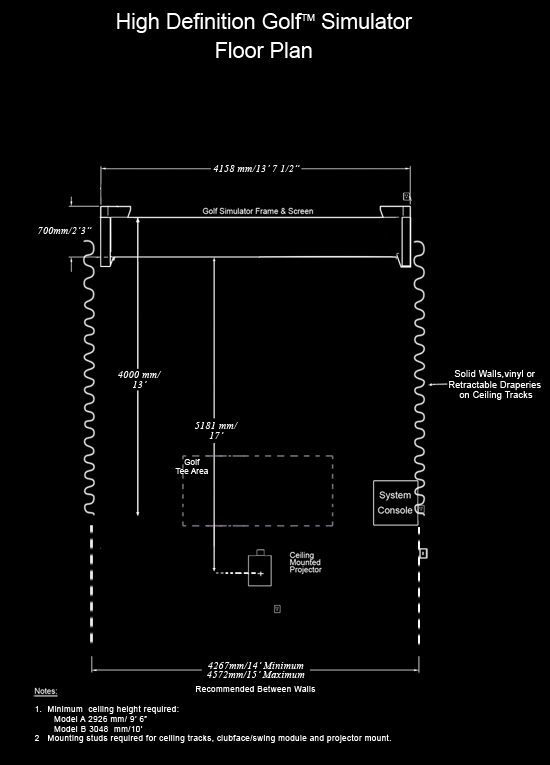
- Minimum 9 1/2' ceiling height required
- Home and commercial models available
 |
Luxury Home Installation |
Lease a High Definition Golf™ simulator!
Financing plans featuring low monthly payments available to suit any budget.
 |
Golf Retail Installation |
Space Efficient and Multi-purpose
The system is space efficient and multi-purpose making it ideal for many indoor golf applications including recreation centers, hotels, resorts, sports bars, golf course clubhouses, golf retail and luxury homes. The system frame requires only 14’ (wide) by 2’ (deep) of floor space with minimum 9' 6" ceiling height. Retractable draperies can be pulled back when the system is not being used for golf so that the room can be used for other functions such as super large screen TV (HDTV compatible). Excellent for watching sporting events, etc! No room construction or sub-floors required. Solid wall and golf cage installations also available.
Call us for Customized Solutions
 |
Golf Center Installation |

|